
http://www.epson.com.cn/robots/
请简单填写您的需求并提交联系方式,专业工程师会尽快与您联络
工业机器人业务销售咨询:
华南(广东+福建+湖南+广西+海南+香港/澳门)
爱普生(中国)有限公司深圳分公司
工业机器人
电话:86-755-26993828
爱普生热线:4008109977转5
江苏+安徽:
爱普生(中国)有限公司上海分公司
工业机器人
电话:86-21-54235577
爱普生热线:4008109977转5
上海+浙江:
爱普生(中国)有限公司上海分公司
工业机器人
电话:86-21-54235577
爱普生热线:4008109977转5
华北+西部+东北:
爱普生(中国)有限公司
工业机器人
电话:86-10-85221199
爱普生热线:4008109977转5
工业机器人业务售后服务:
华南:
爱普生(中国)有限公司深圳分公司
工业机器人
电话: 86-755-26993828
爱普生热线:4008109977转5
华东:
爱普生(中国)有限公司上海分公司
工业机器人
电话:86-21-54235577
爱普生热线:4008109977转5
华北+西部+东北:
爱普生(中国)有限公司
工业机器人
电话:86-10-85221199
爱普生热线:4008109977转5
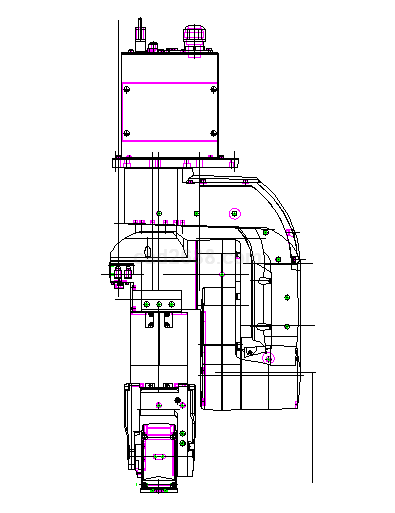
Epson爱普生垂直6轴机器人CAD工程图纸DWG格式产品为0元购产品,注册会员后,即可免费购买下载0元购产品,在订单详细信息中点击下载链接,下载该文件!
Epson爱普生垂直6轴机器人CAD工程图纸DWG格式产品为0元购产品,注册会员后,即可免费购买下载0元购产品,在订单详细信息中点击下载链接,下载该文件!